Classic Dream House

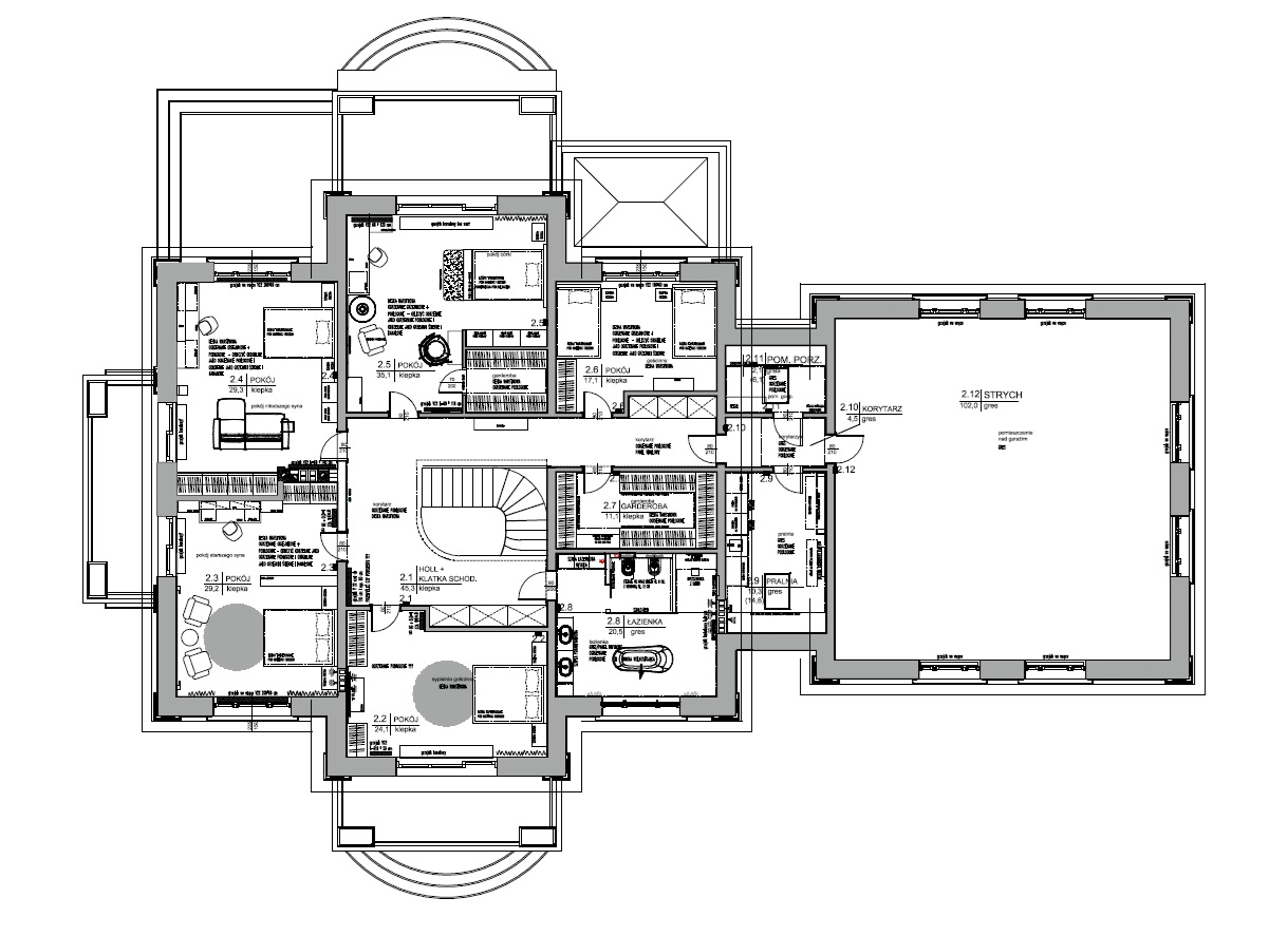
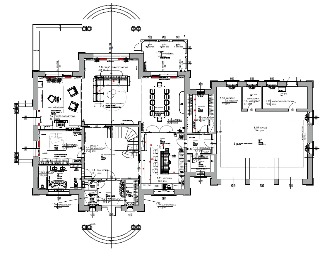
Projekt przestronnej rezydencji utrzymanej w eleganckim stylu łączącym Hampton z nutą kolonialnego szyku. Wnętrze emanuje ponadczasową elegancją, a jednocześnie jest pełne światła, harmonii i domowego ciepła. W centralnym punkcie domu znajduje się strefa wypoczynkowa z dużą, wygodną sofą. Zaraz obok mamy reprezentacyjną jadalnię z dużym stołem, przy którym można celebrować wyjątkowe chwile w rodzinnym gronie. Po drugiej stronie część gabinetowa. Nie mogło zabraknąć kominka, stylowego biurka i biblioteki. Zastosowałam tu jasne, stonowane barwy, które tworzą atmosferę spokoju i wyrafinowania. Drewniane akcenty i klasyczne detale nadają wnętrzu eleganckiego, a zarazem przytulnego charakteru. To przestrzeń, która łączy funkcjonalność z ponadczasową estetyką. Kuchnia - To serce domu łączy w sobie styl i funkcjonalność na najwyższym poziomie. Obie łazienki są przestronne i jasne. Sypialnia gospodarzy - delikatna i elegancka. Zaprojektowano również pokoje dziecięce dla nastoletnich już dzieci, oraz pokoje gościnne.

Fot. Tomasz Kocot

Typ

Dom

Metraż

450 m2

No items found.

Sypialnia gospodarzy

No items found.

Łazienka na parterze

No items found.

Łazienka na piętrze

No items found.

Pokój SYNA

No items found.

Opinia klienta

Poznaj nasze portfolio

POZWÓL NAM NAPISAĆ HISTORIĘ TWOJEGO WNĘTRZA

Dowiedz się ile kosztuje projekt wnętrza?