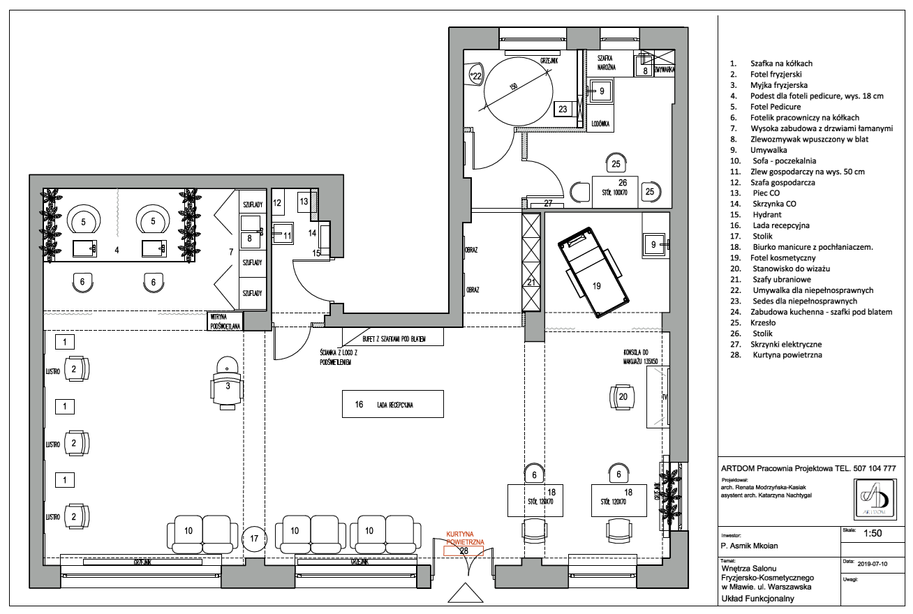
BEAUTY CLUB W MŁAWIE

Piękne i luksusowe wnętrze w Mławie zaraz przy Rynku - Women Men Beauty Club, czyli ekskluzywny salon fryzjersko-kosmetyczny.. Dzięki odwadze i zaufaniu, jakim obdarzyli mnie Inwestorzy wnętrze salonu wyszło bardzo klimatycznie i elegancko. Piękne fornirowane elementy na ścianach, płytki imitujące biały i czarny marmur, zielone ściany oraz ciekawe oprawy oświetleniowe stworzyły luksusową przestrzeń. Przy realizacji projektu wsparła nas firma stolarska Woodland. Spod jej ręki wyszły zabudowy stolarskie oraz fornirowane okładziny ścian. Projekt zrealizowany we współpracy z Pracownią Stolarską Woodland.

Fot. Tomasz Kocot

Typ

Salon fryzjerski

Metraż

120 m2

No items found.

No items found.

No items found.

No items found.

No items found.

Opinia klienta

Poznaj nasze portfolio

POZWÓL NAM NAPISAĆ HISTORIĘ TWOJEGO WNĘTRZA

Dowiedz się ile kosztuje projekt wnętrza?