Dom pełen światła

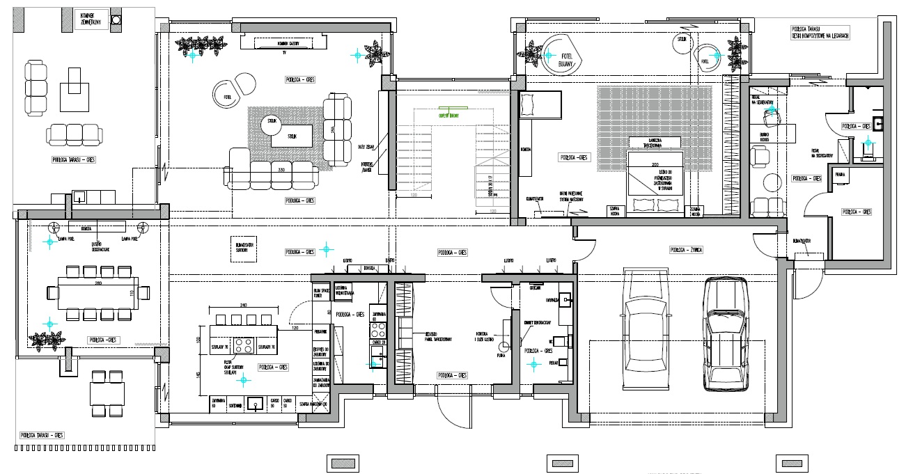
Cieszymy się, że do naszego portfolio dołączyła ta cudowna, pełna światła przestrzeń, urządzona w delikatnych, subtelnych barwach. Strefa dzienna to duży, wysoki na dwie kondygnacje salon z antresolą, jadalnia i kuchnia z dużą wyspą, oraz hall wejściowy i reprezentacyjna klatka schodowa. Schody wspornikowe ze szklanymi balustradami wiodą przez dwie kondygnacje do położonego na samej górze pomieszczenia, skąd możemy wyjść na duży taras i ogród znajdujący się na dachu budynku. Wnętrze ma charakter reprezentacyjny i luksusowy, ale też nie pozbawiony przytulności, pozwalający odpocząć i zrelaksować się po pracy. Pogodzenie tych aspektów było tu nie lada wyzwaniem.

Fot. Tomasz Kocot

Typ

Dom

Metraż

550 m2

No items found.

Sypialnia gospodarzy z łazienką

No items found.

Pokój dziecięcy

No items found.

No items found.

No items found.

Opinia klienta

Poznaj nasze portfolio

POZWÓL NAM NAPISAĆ HISTORIĘ TWOJEGO WNĘTRZA

Dowiedz się ile kosztuje projekt wnętrza?